Vasca principale
Vasca Sump Vasca di rabbocco
Sistema di Conduzione
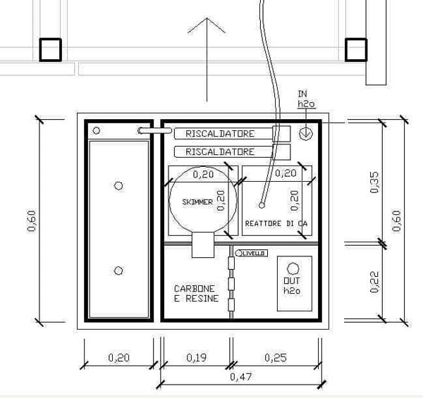
Parte tecnica La vasca come gia detto e’ un berlinese ma con delle varianti elenco qui la metodologia di filtraggio il piu’ schematicamente possibile: – Schiumatoio LGs 900c 3 pompe di cui 2 hidor con girante a spazzola per la schiumazione e 1 Hodor L35 per il caricamento con derivazione in uscita per caricamento reattore di calcio) – Reattore di Calcio LGr 1400i con 1 pompa hidor L35 di ricircolo caricato tramite derivazione pompa schiumatioi con sonda ph controllata da IKS , elettrovalvola e bombola di co2 da 5 kili – 1 volta ogni 2 mesi o quando necessita collego filtro a letto fluido con 1/2 chilo di carbonne attivo per 2 giorni (il meno possibile perchè secondo me il carbone influenza molto in negativo la crescida dei coralli) – niente KW, reattori di zeolite o quant’altro – 2 pompe di risalita – 1 oceanrunner 3500 principale e 1 hidor L40 supplementare collegata al mio sistema di – Backup artigianale La sump
Appunti 1) Ho cercato di semplificare al massimo la gestione con 1 cambio di acqua ogni 1 mese e 1/2, eliminando tutto il superfluo (seguendo la teoria meno roba c’e’ meno risci di rottura si corrono) qui mi ricollegherò piu’ tardi anche sulla conduzione sempre nell’ottica della semplificazione. 2) Tornassi indietro cambiere alcune cose tra le quali la vasca principale che la realizzerei in cristallo extrachiaro (che influisce notevolmente sulla resa cromatica finale delle acro ecc..) e di dimensioni in larghezza max 140 cm in modo da coprirla con 2 HQI al posto di 3… solo per una questione economica .
Illuminazione Dopo aver utilizzato plafoniere varie ho deciso di semplificare anche questa realizzando una struttura capace di trasformarsi in base alle mie esigenze (prove di riflettori ecc.) construendo un semplice telaio in acciaio con delle barre distanziatrici muovibili in modo di essere adattate a vari riflettori ecc…)
Ora monto da parecchio tempo 3 spider con 3 HQI di 400Wt. sotto ballast elettronico suddivise cosi’:
Il tutto controllato dall IKS che sottolineo non avermi mai dato il minimo problema in 2 anni e che ritengo stracollaudato. Tempi: T5 dalle 11.00 alle 23.00 Curiosità: Pur non utilizzando luci lunari ho avuto piu’ volte tentativi di riproduzione dalle tridacne.
Movimento dell’acqua Il movimento dell’acqua e’ affidato a 2 pompe tunze stream 6060 da 6000 litri/h non alternate e non elettroniche puntate a 45° verso il centro e posizionate sui lati anteriori della vasca abbastanza in alto + 1 pompa hidor calata sul fondo dietro alla rocciata per evitare ristagni.
Somministrazione del calcio – Reattore di Calcio LGr 1400i con 1 pompa hidor L35 di ricircolo caricato tramite derivazione pompa schiumatoio con sonda ph controllata da IKS , elettrovalvola e bombola di co2 da 5 kili Materiale di riempimento: – mi sono trovato molto bene con la korallith della knop , difficile da sciogliere PH 6.10 ma sicuramente esente da po4 – da qualche mese uso jumbo della korallen e ho notato uno schiarimento dei coralli significativo (alla faccia dei po4 rilasciati…) ma anche un indebilimento del tessuto di alcune specie di sps credo dovuto all’utilizzo di questo materiale. 1 manciata di granuli di mg. nel reattore quando cambio materiale e quindi circa 1 volta all’anno.
Accessori Sistema di controllo e un IKS con 2 ciabatte da 4 prese controllate: 2 Moduli ph: 1 sonda di livello ottica dell iks (funzionante da piu’ di 2 anni senza pulirla)
Allestimento -Roccie vive 80 kg.
Integratori – quando necessita (circa 1 volta al mese) qualche cucchiaio di buffer della kent per mantenere ph stabile intorno al’8 – quando mecessita (dopo aver eseguito test e quindi ad intervalli minimi di 1 volta al mese) aggiunta di cloruro di calcio acquistato in farmacia (mantengo il CA a 500 ppm.) – quando mecessita (dopo aver eseguito test e quindi ad intervalli minimi di 1 volta al mese) aggiunta di magnesio cloruro + solfato da ricette online acquistato in farmacia (mantengo il MG a 1350 ppm.) – 4/6 goccie di Fluoro ogni 2 giorni
Alimentazione – pappone light da mia ricetta ogni 3 giorni (1 cucchiaino) – 1 quardetto di artemie e similari congelati ogni 2 giorni per i pesci – Marine de luxe H&S 15 ml ogni 3 giorni – 1 fialetta di reefboster 1 volta a settimana – Scaglie ogni 2 giorni
Manutenzione – 1 volta ogni 3 mesi smontaggio e pulizia di TUTTE le pompe – 1 volta all’anno pulizia totale dello skimmer e del reattore di calcio – 1 volta ogni 2 mesi ricarica della batteria da 100AH del sistema di backup e controllo tenuta (ora circa 15 ore con 70 wt di carico) – CAMBIO ACQUA OGNI 1 MESE E 1/2 O 2 A SECONDA DI COME VEDO LA VASCA – sifonatura mai fatta eccetto a due mesi dall’impianto. – pulizia dei vetri 1 volta a settimana – controllo delle HQI e sostituzione ogni 6 mesi circa – controllo e sostituzione delle T5 ogni 4 mesi circa
Valori dell’acqua Ph tra 7,8 e 8,2 (iks) pk reattore 6.5 KH 7/10 (salifert) Ca 500 mg/l (salifert) Mg 1350 mg/l (salifert) NO3 assenti (salifert) PO4 assenti o minimi (salifert doppio reagente) Salinità a 35 (misurato con rifrattometro) utilizzo sale TROPIC MARIN e ISTANT OCEAN
QUALCHE CONSIGLIO PER CHI INIZIA: La semplicità e la pazienza sono i segreti di questo hobby, anche se naturalmente il continuo aggiornarsi e lo studio non fanno certo male. 😉 Cercate di non complicarvi troppo la vita anche perchè più le cose si fanno complicate piu’ e facile che ci sia un problema e quindi un disastro… OGNI CAMBIAMENTO NELLA CONDUZIONE DEVE ESSERE FATTO DA SOLO E MONITORIZZATO NEL TEMPO (ALMENO 1 SETTIMANA) prima di fare altri cambiamenti cosi’ da capire a cosa e’ dovuta una certa reazione della vasca (azione-reazione) Ringraziamenti Ringrazio questa bellissima comunità per avermi permesso di approfondire questa bellissima esperienza p.s.: per chi avesse bisogno segnalo qui la mia email: caspanim(chiocciola)email.it |


































































































































































